Leave a Message

Thank you for your message. We will be in touch with you shortly.

Explore Our Properties

Property Description

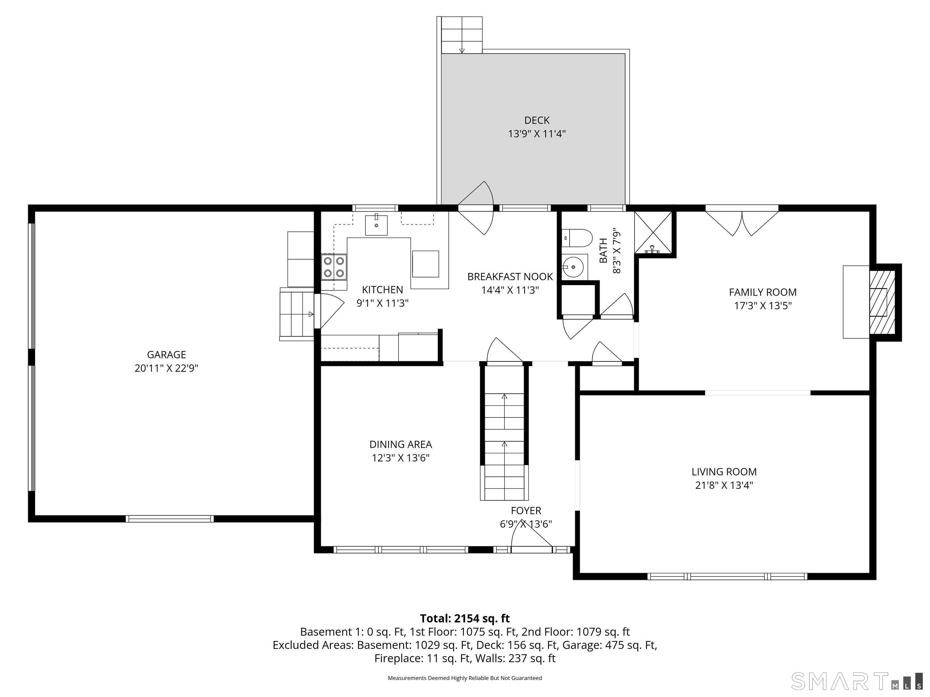
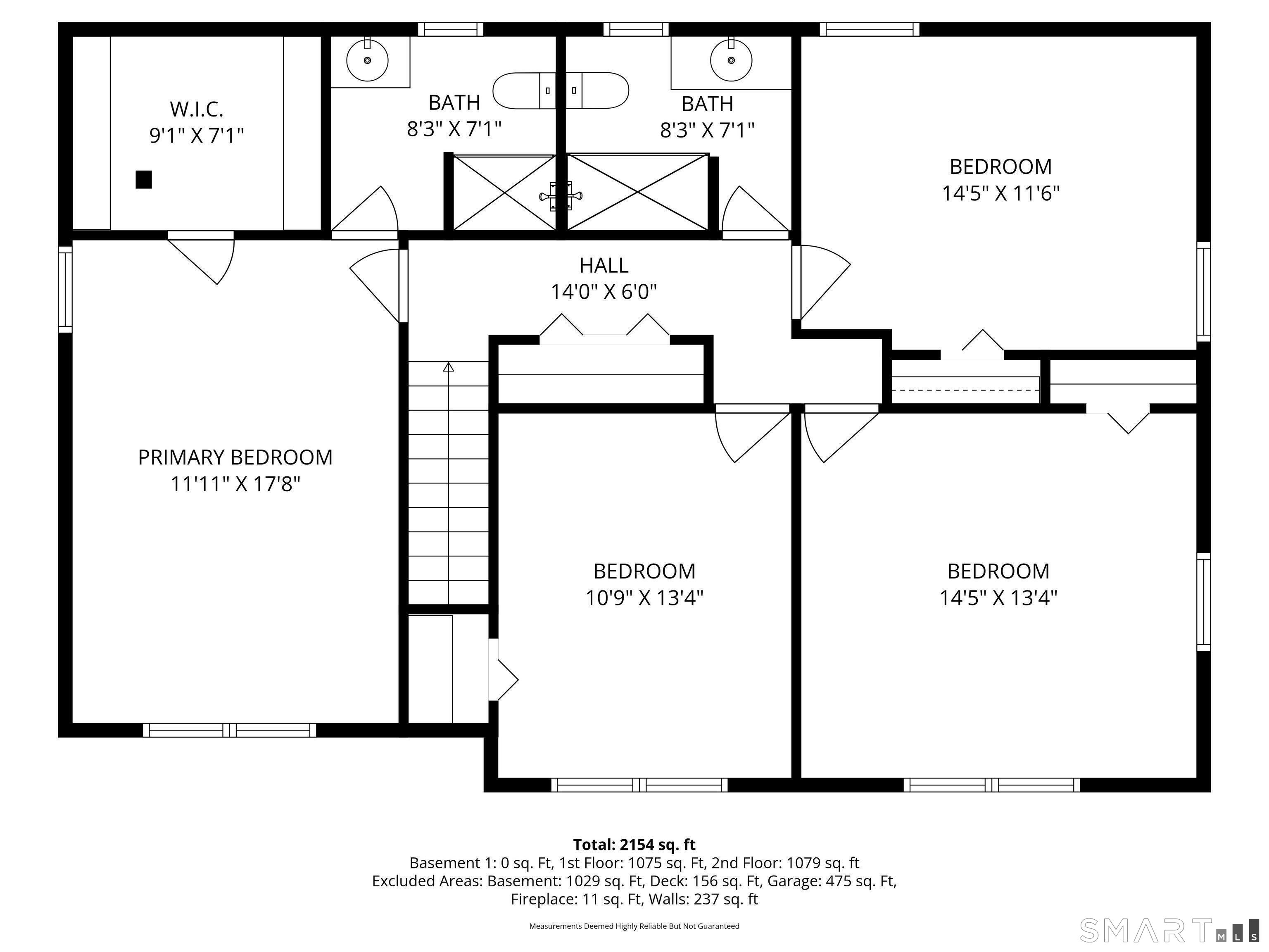
Set on a beautiful tree lined street in desirable North Stamford, this spacious 4 bedroom Colonial blends comfort, charm, and functionality. Bright and sunny throughout, the home features beautiful hardwood floors and generously sized rooms designed for both everyday living and entertaining. At the heart of the home is a chef's kitchen, thoughtfully designed and used by a professional chef, with excellent workspace, storage, and layout for cooking and gathering. The inviting family room features a fireplace and elegant French doors that open to the yard, creating a warm and welcoming space to relax or host friends and family. The spacious primary suite includes a walk in closet and private ensuite bath, while three additional bedrooms and a total of three full bathrooms provide flexibility for guests, work from home needs, or extended family. A two car garage adds convenience and additional storage, and the beautiful yard provides the perfect space for outdoor enjoyment and entertaining. Conveniently located near the Merritt Parkway and close to everything North Stamford has to offer including walking paths, the Stamford Nature Center, Trader Joe's, and local favorites, this home combines peaceful surroundings with everyday convenience.

Overview

Property Status
Sold
Lot Size
1 Acres
MLS ID
24157712
Property Type
Residential
Year Built
1964

Features & Amenities

Total Area
2,272 Sq.Ft.
Neighborhood
North Stamford
Architecture Styles
Colonial
Garage Spaces
2.0
Water Source
Well
Roof
Asphalt
Parking
Attached
Heat Type
Electric, Baseboard
Air Conditioning
Central Air
Laundry Room
In Basement
Appliances
Cooktop, Dishwasher, Microwave, Range, Oven, Refrigerator, Electric Water Heater
Sewer
Septic Tank
Substructure
Concrete Perimeter
Elementary School
Northeast
High School
Westhill
Sales Price
$1,000,000
Real Estate Tax
$11,719/yr
Zoning
RA1

Downloads

39 McIntosh Road

Schedule a Tour

We would love to help you see this beautiful home! As a full-service brokerage, we can help you tour. Please submit an offer, and answer questions about the buying process.

Thank you

for your interest in 39 McIntosh Road, Stamford, CT 06903

39 McIntosh Road
Navigate
North Stamford

Explore North Stamford

North Stamford is a rich tapestry of history and natural beauty in Connecticut.

read more

39 McIntosh Road

Featured listings

  • 15 Hemlock Road For Sale

    $4,950,000

    15 Hemlock Road, Bronxville, NY 10708

    • 6 Beds
    • 5 Baths
    • 5,599 Sq.Ft.
  • 107 Barclay Drive Pending

    $1,250,000

    107 Barclay Drive, Stamford, CT 06903

    • 4 Beds
    • 3 Baths
    • 2,168 Sq.Ft.
  • 2525 Long Ridge Road For Sale

    $1,199,000

    2525 Long Ridge Road, Stamford, CT 06903

    • 4 Beds
    • 3 Baths
    • 2,524 Sq.Ft.
  • 71 Elizabeth Avenue Pending

    $875,000

    71 Elizabeth Avenue, Stamford, CT 06907

    • 3 Beds
    • 3 Baths
    • 1,484 Sq.Ft.
  • 50 Glenbrook Road 6E For Sale

    $355,000

    50 Glenbrook Road 6E, Stamford, CT 06902

    • 1 Bed
    • 2 Baths
    • 1,079 Sq.Ft.
  • 2 Consulate Drive Unit: 3B Pending

    $260,000

    2 Consulate Drive Unit: 3B, Tuckahoe, NY 10707

    • 1 Bath
    • 454 Sq.Ft.
View All